新築同様の性能と機能を目指した断熱リノベ(等級6)
- 販売価格
- 2,780万円
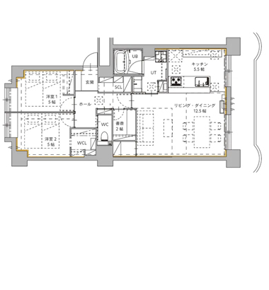
- 間取り
- 2LDK
物件おすすめポイント
売主につき仲介手数料不要
家具付き
2025年8月リノベ済(水廻り・内装等)
書斎スペース有り
都市ガス
詳細情報
●交/中央バス「札大正門前」停徒歩1分●専/75.25㎡ (22.76坪)●バ/10.09㎡●構/SRC・一部RC造●階/10階建3階●築/1989年10月●管+修/20,420円(月額)●管形/全部●管勤/日勤●備/学区:西岡北小(徒歩4分)・西岡北中(徒歩8分)。売主(税込)
オープンハウス情報
内覧の際は事前にお電話下さい






























